- ƒgƒbƒvƒy[ƒW
- ç—t
ç—t
–žŽº‰Ò“’†@3‰w3˜Hü—˜—p‰Â”\@“y’n89’Ø@‰w‘O¤“XEˆùH“X[ŽÀ@ƒX[ƒp[“k•à5•ª
| •¨Œ ”Ô† |
Ží•Ê | ‰w | ‰¿Ši | —˜‰ñ‚è |
|---|---|---|---|---|
| 63286 | ˆê“ƒ}ƒ“ƒVƒ‡ƒ“ | –{”ª”¦ | 24,000–œ‰~ | 5.76% |
| ”õl | ’‡‰îŽè”—¿30%Š„ˆø@RC‘¢4ŠKŒš@“X•Ü4ŒË@1LDK11ŒË@ƒoƒXƒgƒCƒŒ•Ê@Žº“àô‘ó‹@’uê@’“—Öê@–k¼‘¤“¹˜H–Ê@–žŽº | |||
| ŠÝ’n | ŽsìŽs‘å˜a“c |
|---|---|
| ‰w‚©‚ç | “k•à17•ª |
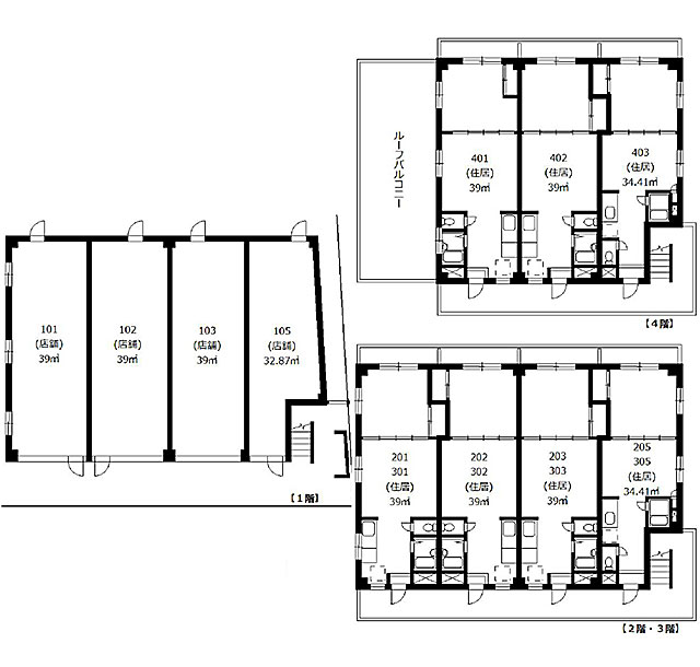
| “y’n–ÊÏ | 296.93m2 |
| °–ÊÏ | 578.94m2 |
| ’z”NŒŽ | 1988”N3ŒŽ(’z38”N) |
| \‘¢ | RC |
| ŒË” | 15ŒË |
| —p“r’nˆæ | ‘æˆêŽí’†‚‘wZ‹ê—p’nˆæ |
| Œš‚Ø‚¢—¦ | 60“ |
| —eÏ—¦ | 200“ |
| ”NŽû“ü | 1,382.5–œ‰~ |
| ŽæˆøŒ`‘Ô | ”}‰î |
| ‚¨‚·‚·‚ß ƒ|ƒCƒ“ƒg |
‘•üu–{”ª”¦v‰w‚©‚ç“k•àŒ—“à‚̃}ƒ“ƒVƒ‡ƒ“‚Å‚·B u›–ìv‰wAuŽsìv‰w‚©‚ç‚à“k•àŒ—“à‚Å—˜—p‰Â”\B “y’n–ÊÏ‚Í89’ØB Z‹•”•ª‚Í‘SŽº1LDKƒ^ƒCƒvA’PgŽÒ‚Ì•û‚Í‚à‚¿‚ë‚ñƒJƒbƒvƒ‹‚₲•v•w‚É‚àl‹C‚ÈŠÔŽæ‚è‚Å‚·B ‰wŽü•ӂͤ“XEˆùH“X‘½”B •¨Œ‚©‚çƒX[ƒp[‚܂ł͓k•à5•ª‚Å—˜—p‚ª‚Å‚«‚Ü‚·B ‚²‹»–¡‚Ì‚ ‚é•û‚ÍA‚¨‹CŒy‚É‚¨–⇂¹‰º‚³‚¢Ii”Ì”„}–Ê‚ð10•bŒã‚ÉŽ©“®•ÔMj |
















